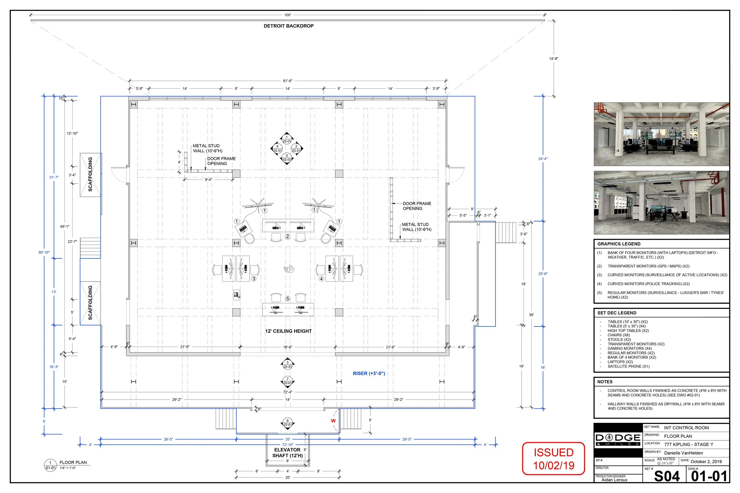
INT CONTROL ROOMCONSTRUCTION DRAWINGS | 3D MODEL | T-SHIRT GRAPHICS View fullsize View fullsize View fullsize View fullsize View fullsize View fullsize View fullsize View fullsize View fullsize View fullsize View fullsize View fullsize View fullsize View fullsize View fullsize View fullsize View fullsize View fullsize View fullsize View fullsize View fullsize