Skip to Content
Danielle VanHelden Design
FILM
FREELANCE
EDUCATION
WEDDINGS
PHOTOGRAPHY
ART
CONTACT
0
0
0
0
Danielle VanHelden Design
FILM
FREELANCE
EDUCATION
WEDDINGS
PHOTOGRAPHY
ART
CONTACT
FILM
FREELANCE
EDUCATION
WEDDINGS
PHOTOGRAPHY
ART
CONTACT
Wren’s Apartment - I think my favourite part of being a Set Designer is seeing a set finally finished. I always try to get out of the office and visit my sets before shooting. It’s a great time to make sure everything is in order and take
Wren’s Apartment - finally some stills! These shots from @seeofficial S2 show off this set at its best - thanks to construction, scenic, set dec, props, costumes, and all the other incredible departments that help bring it to life. 
.
.
.
.
#se
Wren’s Apartment - sometimes the most drastic progress in a set is when Scenic comes in and ‘ages’ up the place. Sets are usually meant to look ‘lived in’ or in @seeofficial ‘s case like they’ve been falling
Wren’s Apartment - It’s incredible to see how quickly a set comes together thanks to super talented construction crews. These progress pics show how we married in new build elements like walls, tile, and flooring, while taking advantage o
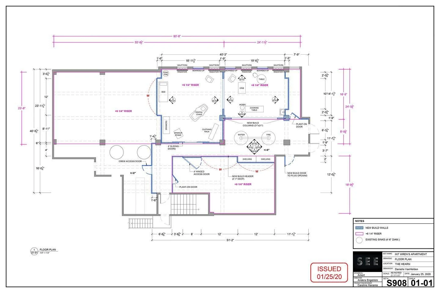
Wren’s Apartment - one of the first sets I worked on for @seeofficial S2. These drawings are typical of a floorplan, elevations, and details that would be issued for a set built at a location. In this case, The Hearn - a popular Toronto filming
Finally going to start posting on here again! Starting with a rebrand and new logo. I’ve been lucky enough to have some time off to update my portfolio and wanted to start sharing it. It will be a combination of Sets and Graphic Design work I&r
Added a little bit of sparkle to this homemade card ✨
Working hard or hardly working? 👩🏼‍💻

DANIELLE VANHELDEN DESIGN

DANIELLEAVANHELDEN@GMAIL.COM